建筑模板设计步骤详解:,1. 确定设计需求和目标。,2. 制定设计方案,包括结构布局和尺寸规划。,3. 选择合适的材料和工艺,确保模板的稳定性和耐用性。,4. 设计模板的连接和支撑结构,确保施工安全。,5. 进行模板的细节设计和优化,确保施工质量和效率。,6. 完成设计并交付施工团队。,以上步骤简明扼要地概述了建筑模板设计的主要流程。
建筑模板设计是建筑工程中的重要环节,它涉及到模板的选材、结构、尺寸、颜色等方面的设计,本文将详细介绍建筑模板设计步骤,帮助读者更好地了解这一过程。
设计准备
-
确定设计目标:在开始设计之前,首先要明确设计目标,例如建筑物的功能、外观、使用需求等。
-
收集资料:收集相关的建筑规范、设计图纸、施工图纸等资料,为设计提供依据。
-
确定设计原则:根据建筑物的特点和需求,确定设计原则,如环保、节能、安全等。
设计步骤
-
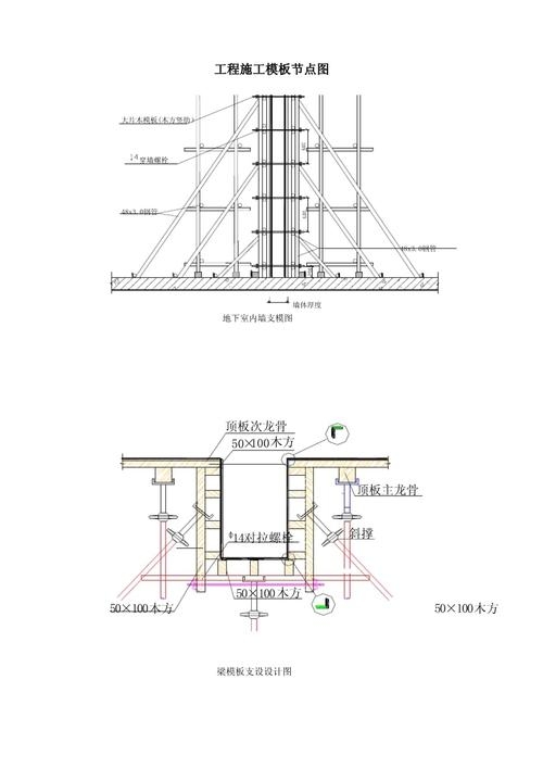
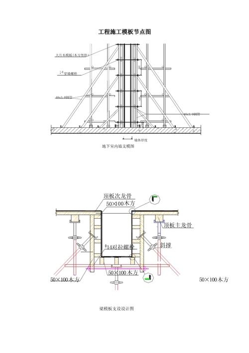
确定模板类型和尺寸:根据建筑物的用途、结构特点等因素,确定模板的类型和尺寸。
-
选择材料:选择合适的模板材料,如木材、钢材、塑料等,同时要考虑材料的强度、耐久性、环保性等因素。
-
设计结构:根据模板的尺寸和材料特性,设计合理的结构,包括模板的支撑系统、连接方式等。
-
考虑施工方便性:在设计过程中,要考虑施工方便性,如模板的拆卸、安装等操作要方便快捷。
-
绘制图纸:根据设计思路和实际情况,绘制建筑模板的详细图纸,图纸要清晰、准确,符合规范要求。
-
审核和修改:在绘制完图纸后,要进行审核和修改,确保设计的合理性和可行性。
注意事项
-
设计要符合规范:在设计过程中,要严格遵守相关的建筑规范和标准。
-
设计要环保、节能、安全:在设计过程中,要充分考虑环保、节能、安全等因素,确保设计的合理性和可持续性。
-
设计要考虑到实际情况:在设计过程中,要考虑到实际情况,如地形、地貌、气候等因素,确保设计的实用性。
建筑模板设计是建筑工程中的重要环节,需要遵循一定的步骤和原则,在设计中,要充分考虑建筑物的特点、需求和使用环境等因素,选择合适的模板类型和尺寸,设计合理的结构,考虑施工方便性,要注意遵守相关的规范和标准,确保设计的合理性和可行性。




















